Расчет дома из ЛСТК по СНиП
Специалисты «Авинекс» спроектировали здание на основе лёгких тонкостенных конструкций (ЛСТК) по предоставленным эскизам. Проведены расчёты по СНиП 2.01.07-85* на снеговые и ветровые нагрузки с учётом климатических условий Санкт-Петербурга и Ленинградской области. Обеспечен двукратный запас прочности, выполнена проверка предельных прогибов прогонов и ригелей. По результатам анализа подготовлена отчётная документация, подтверждающая соответствие конструкции требованиям надёжности и безопасности




Расчет летнего парусного навеса
Мы разработали 3D-модель парусного навеса и выполнили расчёты по СНиП 2.01.07-85* на ветровые нагрузки. Конструкция спроектирована с двукратным запасом прочности. Для повышения точности анализа проведено аэродинамическое моделирование при штормовых условиях, рассчитаны реальные ветровые усилия и проверена несущая способность металлоконструкций. По итогам выполнен отчёт в формате пояснительной записки с экспертным заключением, подтверждающий безопасность и устойчивость конструкции



Проект ангара 600 м2
Инженеры «Авинекс» выполнили проектирование ангара площадью 600 м² с расчётами по СНиП 2.01.07-85* на снеговые и ветровые нагрузки для Москвы и Московской области. Конструкция разработана с 1,7-кратным запасом прочности, выполнен подбор метизов и поставщиков металла. В ходе оптимизации сортамента удалось снизить расход металла на 20% без потери надёжности. Подготовлен комплект КД по ГОСТ ЕСКД, оформлены пояснительные записки с экспертным заключением и выпущены чертежи под реальные производственные мощности заказчика








Экспертиза силосов 40 т
Инженеры «Авинекс» провели экспертный анализ причины разрушения силосов, рассчитанных на загрузку до 40 тонн песка. В ходе нелинейного расчёта с высокой точностью определён момент потери несущей способности — при заполнении баков на 50% (около 20 тонн). Подготовлен отчёт с инженерной экспертизой в формате пояснительной записки, включающий результаты моделирования, выводы и рекомендации по предотвращению повторных разрушений



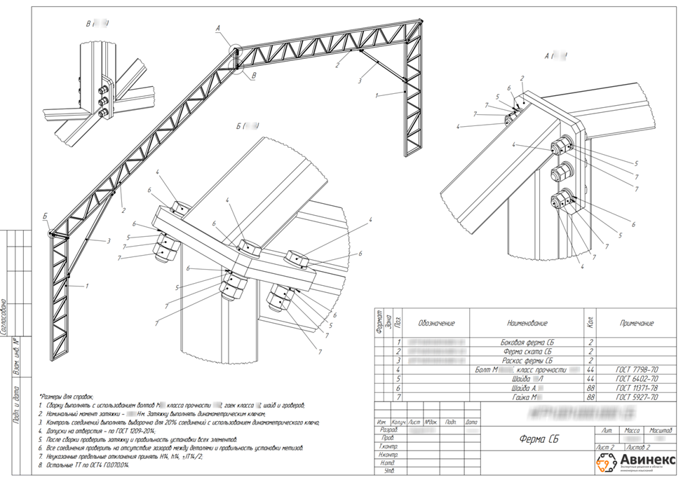
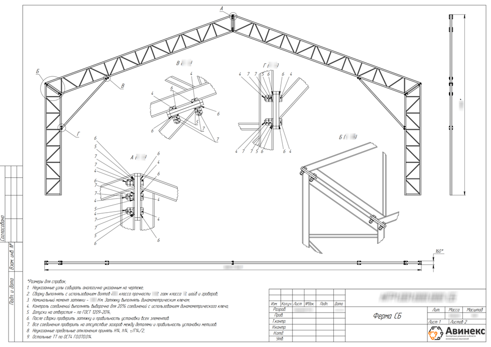
Секция ангара из ЛСТК
Спроектировали секцию ангара из лёгких тонкостенных конструкций (ЛСТК) по предоставленным эскизам. Провели расчет несущей способности по требованиям СНиП 2.01.07-85* с учётом климатических условий Волгоградской области. Обеспечили необходимый запас по надежности и жесткости конструкции. Дали рекомендации по оптимизации строения ферм



Проект конструкции веревочного городка
Инженеры «Авинекс» спроектировали конструктивные элементы верёвочного городка и выполнили расчёты на прочность с обеспечением 3-кратного запаса надёжности для безопасной эксплуатации детьми. Проведена оптимизация металлоёмкости, что позволило снизить стоимость сортамента более чем на 15% без потери прочности. Подготовлено экспертное заключение в формате пояснительной записки. Конструкция успешно введена в эксплуатацию и используется в развлекательных парках








Деревянная ферма навеса
Мы спроектировали и рассчитали деревянную ферму односкатного навеса по требованиям СНиП на снеговые и ветровые нагрузки для размещения в Автово (Санкт-Петербург). При анализе учтены ортотропные свойства древесины, требующие особого подхода к моделированию и расчётам. По результатам работы оформлено экспертное заключение в формате пояснительной записки, подтверждающее надёжность и соответствие конструкции нормам



Малые архитектурные формы. Сочи
Выполнили полный цикл аэродинамических и прочностных расчётов для декоративной конструкции «ветровой цветок», установленной в Сочи. В ходе работы проведено моделирование воздействия ветра 25 м/с (шторм по шкале Бофорта), по результатам которого выполнен анализ прочности и надежности. Обеспечили 1,5-кратный запас по прочности, подобрали крепеж, выпустили комплект конструкторской документации на изготовление. Максимальный прогиб 16,89 мм находится в допустимых пределах — конструкция полностью безопасна и готова к эксплуатации







Односкатное модульное здание. Пенза
Инженеры «Авинекс» спроектировали односкатное модульное здание и провели расчёты на снеговые и ветровые нагрузки по СНиП с учётом климатических условий города Пенза. В результате оптимизации конструкции удалось снизить стоимость изготовления на 15% без потери прочности и надёжности. Подготовлен полный комплект конструкторской документации по ГОСТ ЕСКД и оформлен отчёт. Изделие полностью подготовлено к серийному изготовлению



Расчет ж/б колонн по 1 группе предельных состояний
Специалисты «Авинекс» выполнили оценку несущей способности железобетонной колонны с композитным армопоясом по первой группе предельных состояний. Проведено нелинейное исследование с учётом анизотропии карбоновых волокон и свойств хрупкого бетона специальной марки. Данные расчёта полностью совпали с результатами натурных испытаний, что подтвердило высокую точность моделирования и достоверность инженерных расчётов «Авинекс»

